Gannett

Gannett maintains local offices nationwide for their print and digital presence. From office buildings, to storefronts, I manage the process from test fits, design, documents, and CA. Each office has a limited budget and enthused with local colors and artifacts.

Phoenix AZ, Salisbury MD, Viera FL, Austin TX, Ashville NC, Appleton WI, Greenbay WI, Greensboro SC, Atlanta GA, Evansville IN, Chesapeake MD, Jackson MS, Lebanon PA, Chambersburg PA, Murfreesboro TN, Milwaukee WI, Salinas CA, Tallahassee FL

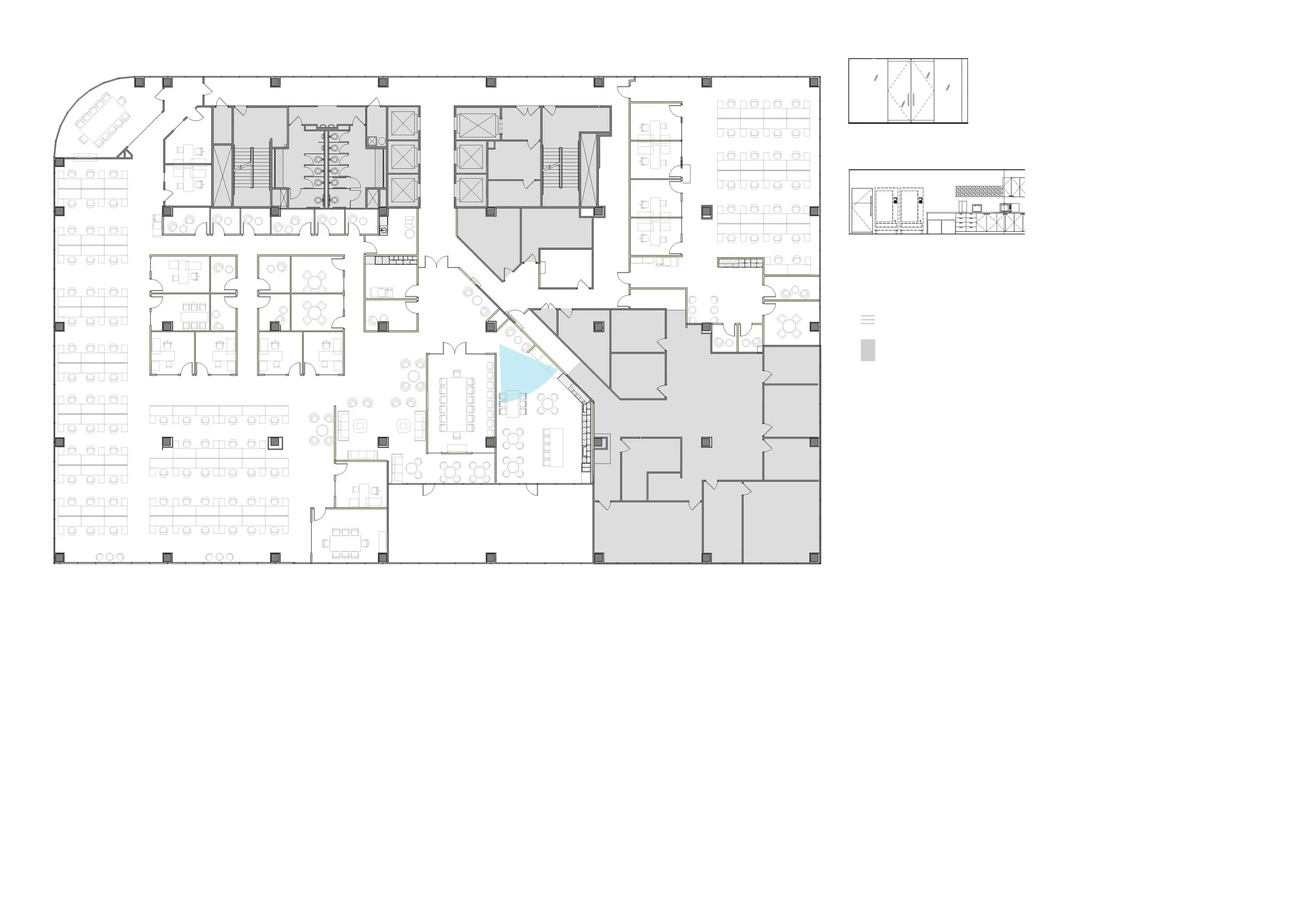
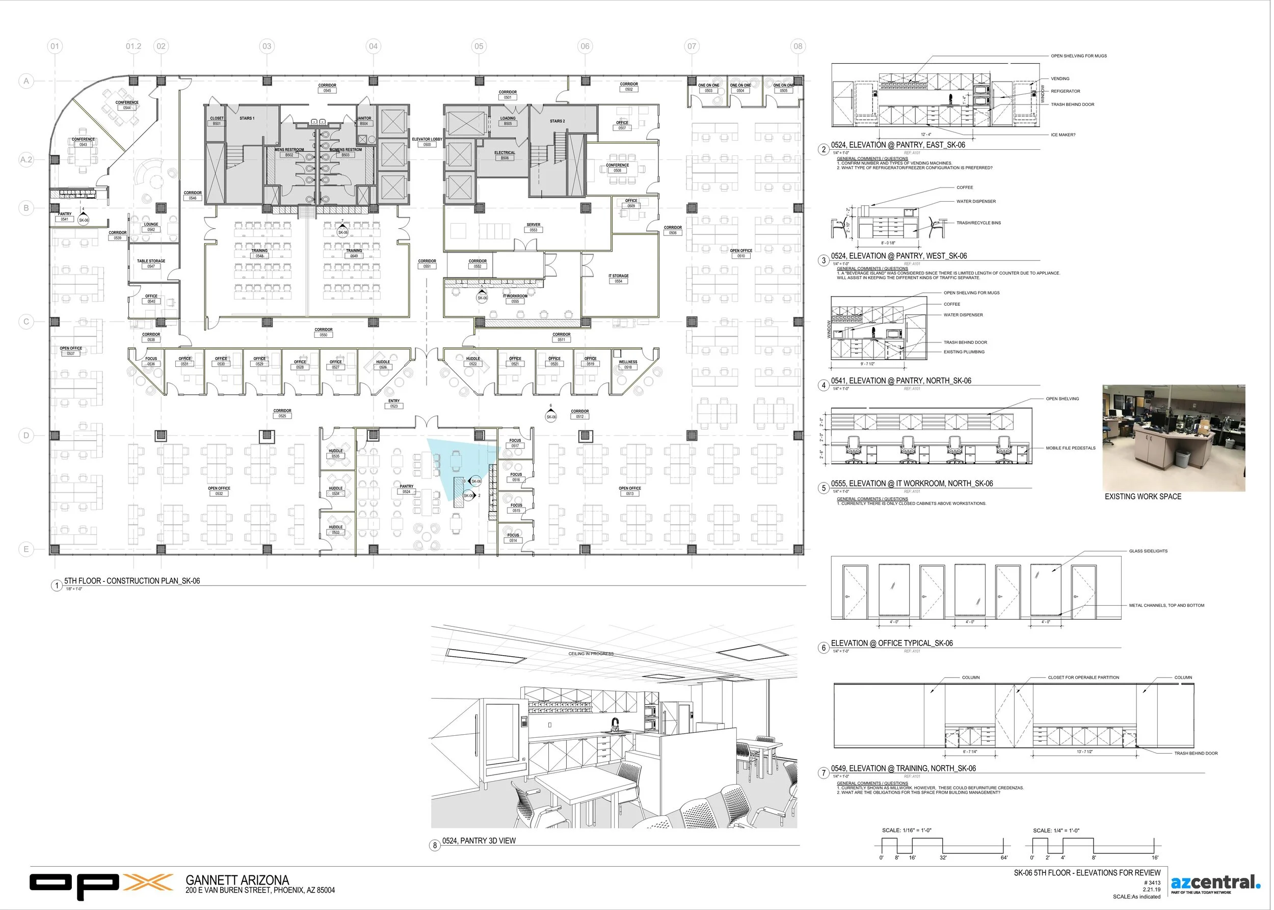
Gannett Pheonix

44,924 SF for 241 Occupants (5th and 10th Floors)

$2,761,975 Construction Costs (5th and 10th Floors)

$56.75 SF Construction Costs

186 SF / $11,460 Per Occupant

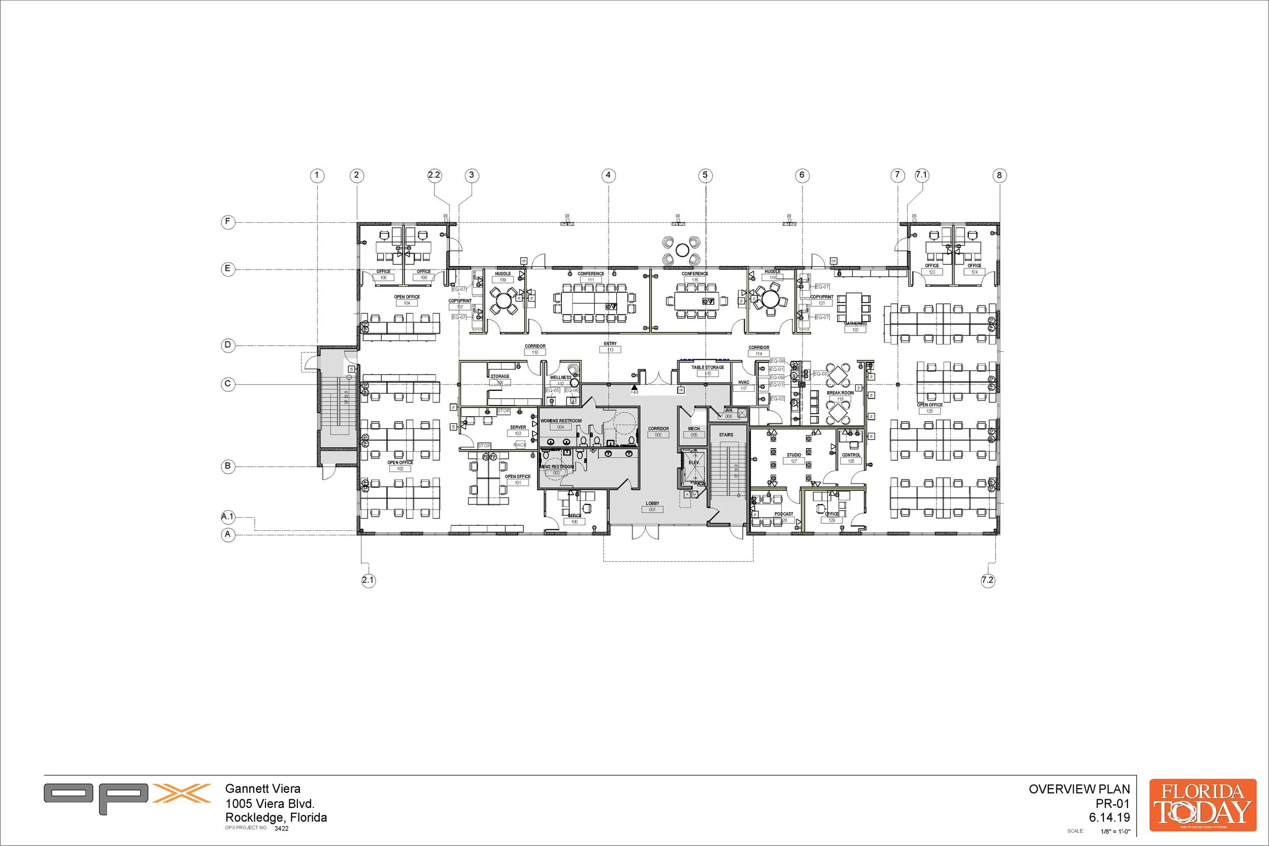
Gannett Rockledge, Florida

44,924 SF for 241 Occupants (5th and 10th Floors)

$2,761,975 Construction Costs (5th and 10th Floors)

$56.75 SF Construction Costs

186 SF / $11,460 Per Occupant

Gannett Milwaukee

24,873 SF

238 Occupants

$104.50 SF per Occupant

Gannett Atlanta

Previous
Previous

Undisclosed

Next
Next

Hilton