undisclosed, government agency

Washington DC

Reimagining the Space

A government agency needed to transform to keep up with attracting new talent and better portray itself as a forward thinking agency. In collaboration with the building architect, we were hired to re-evaluate the difficult layout of the interior space through workplace strategies up to the DD phase. Through intensive programming, space plans, interviews, and several presentations, we created workspaces individualized for each type of work while creating a kit of parts for easier manipulation of spaces for future reconfigurations.

I led the design team in creating concepts of types of work spaces, led the interiors portion of the presentation packets, created design schemes, and was a contributor at the presentations to leadership.

Programming

Conceptual Renderings

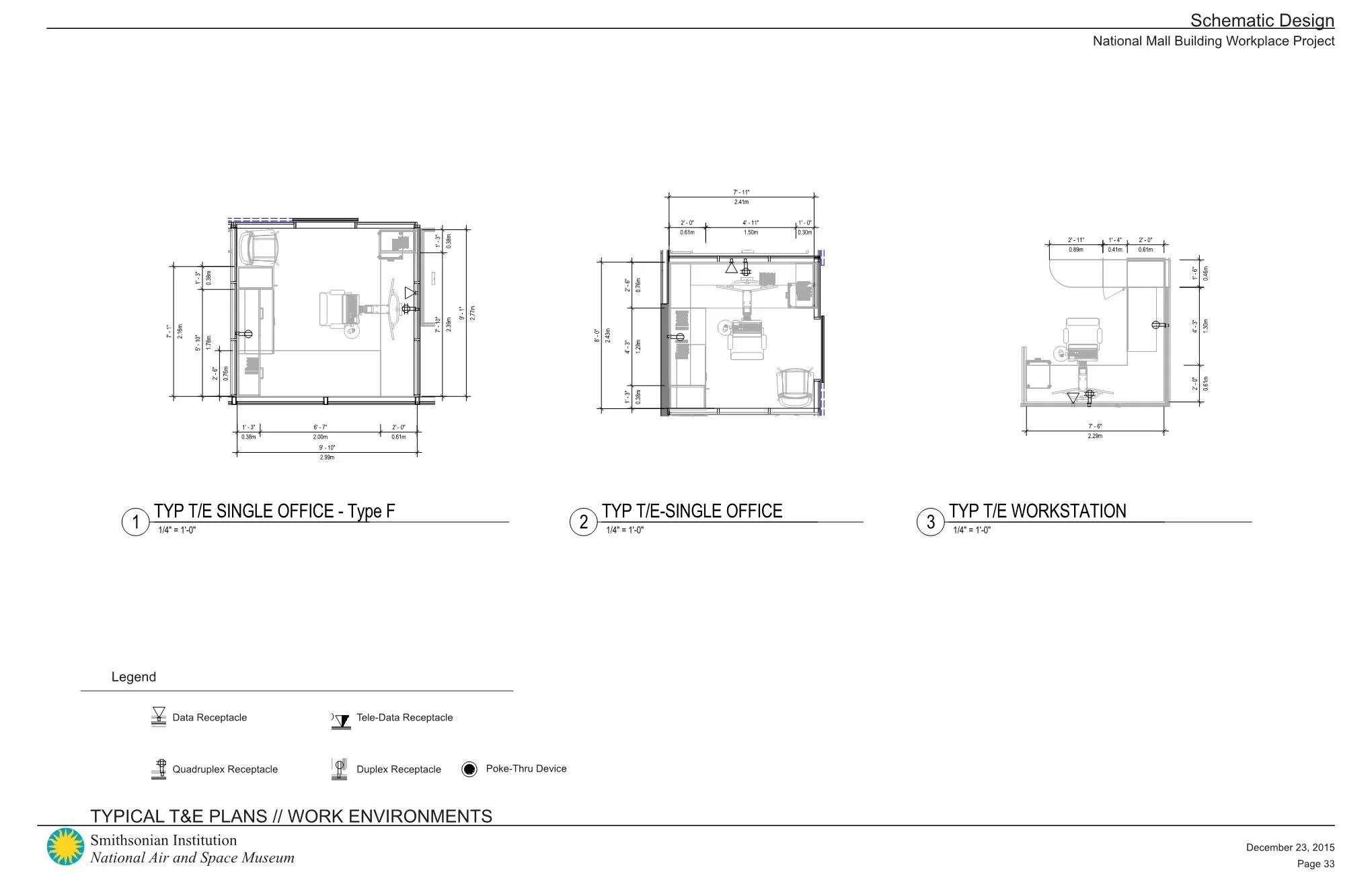
Conceptual Workplace Standards

Previous
Previous

Nestle

Next
Next

Gannett